Дом в Агафоново

«Основной задачей проекта было разработать комфортное пространство для большой семьи из 12 человек на 170 м2»
Роман Романов, архитектор
Площадь
Количество этажей
Статус:
170 м2
1 этаж
Чистовая отделка
История проекта
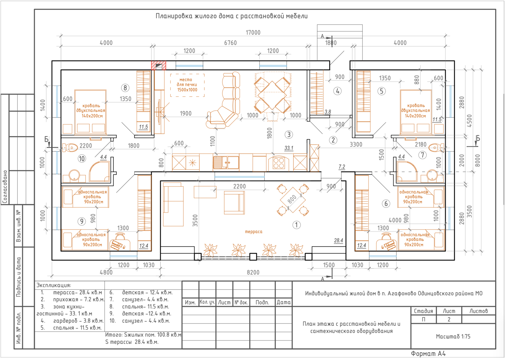
Ко мне обратилась семейная пара, Александра и Геннадий. У них уже был земельный участок, на котором они решили построить комфортный дом. Они хотели создать пространство, где пожилые родители могли бы постоянно проживать, а сама семейная пара могла бы проводить выходные, и где найдется место для всех детей и внуков во время их визитов.
Пожелания клиентов
Обеспечить удобства для проживания пожилых родителей.
Создать доступное и комфортное пространство для людей с ограниченными возможностями, включая широкие дверные проемы и специальную душевую кабину.
Решение
Разработка дома с 6 комнатами для обеспечения индивидуального пространства для каждого члена семьи. Создание просторной совмещённой кухни и гостиной для семейного объединения. Проектирование одноэтажного дома с широкими дверными проемами для удобства пожилых родителей и возможности легкого перемещения на инвалидной коляске. Установка специальной душевой кабины для обеспечения комфортных условий для людей с ограниченными физическими возможностями.
Основная задача
Обеспечить комфортное размещение для 12 членов семьи.
Создать индивидуальное пространство в доме для каждого члена семьи.
Предусмотреть место, где бы семья могла проводить время всем вместе.
Проектирование
1 этаж
170 м2
Фасады
Поэтажный план
СТРОИТЕЛЬСТВО
На данный момент выполнены следующие этапы работы:
  • демонтаж старого строения
  • расчистка участка
  • геология грунтов
  • устройство котлована
  • заливка фундаментной плиты
  • подведение коммуникаций
  • возведение внешних стен
  • устройство кровли
  • остекление
  • возведение межкомнатных перегородок
  • черновая отделка
  • отопление, водоснабжение
  • чистовая отделка
Итог работы:
Работы завершены в срок . Выполнены внутренняя и внешняя отделка. Дом мебелирован и готов к проживанию . Октябрь 2024
резюме проекта
«В итоге мы получили тёплый и крепкий дом, в котором сможет разместиться вся большая семья и будет комфортно жить пожилым людям.»
Роман Романов, архитектор
Создадим дом вашей мечты вместе?
отправить заявку
Оставьте ваши контакты и я свяжусь с вами для бесплатной консультации